玻璃简单分类主要分为平板玻璃和特种玻璃,平板玻璃主要分为三种:即引上法平板玻璃(分有槽/无槽两种)、平拉法平板玻璃和浮法玻璃。浮法玻璃正成为玻璃制造方式的主流。
一、什么是中空玻璃?配断桥铝门窗K值是多少?配普通铝门窗K值是多少?隔音是多少?


中空玻璃是将两块或两块以上的玻璃边部密封在一起,玻璃之间用干燥剂处理,玻璃的内、外温差不一样。
断桥铝门窗+中空玻璃K值约在2.7—3.0;
普通铝门窗+中空玻璃K值约在3.5—5.0;
系统铝门窗+中空玻璃K值约在2.0—2.5;
二、什么是安全玻璃?什么情况下使用安全玻璃?


就是玻璃经过高温处理后,质发生了变化,增强了玻璃的强度。即使玻璃破损了为小颗粒,不伤人。
下列情况铝合金门窗必须采用安全玻璃:
①、地弹簧门用玻璃
②、窗单块玻璃面积大于1.5㎡,有框门单块玻璃面积大于0.5 ㎡;
③、玻璃底边离最终装修面小于500mm的落地窗;
④、无框门窗玻璃;
⑤、公共建筑出入口门;
⑥、幼儿园或其他儿童活动场所的门;
⑦、倾斜窗、天窗;
⑧、7层及7层以上建筑的外开窗。
三、什么是LOW-E玻璃?它的优点是什么?


LOW-E玻璃又名低辐射热反射玻璃,就是玻璃表面镀上一层膜,把紫外线挡在外面,提高或降低室内外的温度,对人体是一种保护作用。
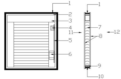
四、什么是中空百页玻璃?页片是什么材质?使用年限是多少?


就是在中空玻璃里面安装金属铝片,采用磁力来控制。可使用2万次约20年,优点是清洁、卫生、不用清洗。
五、中空玻璃、LOW-E玻璃、中空百页玻璃三者相比较,优、缺点是什么?
中空玻璃节能好;LOW-E玻璃防紫外线;中空百页玻璃方便,防阳光直射及增加隐私度。
![]() | 山东省济南市商河县经济开发区商西路12号 |
![]() | mfw.jn@126.com |
![]() | //www.cdzscp.com |
![]() | 0531-85766911 85766101 |
![]() | ![]() |
| 扫一扫关注我们 | 扫一扫关注我们 |